济南金畅隆冶金设备制造有限公司
一、企业名称
济南金畅隆冶金设备制造有限公司(企业厂房位置位于商河医药化工产业园)
二、企业简介
济南金畅隆冶金设备制造有限公司成立于2011年02月11日,注册地位于山东省济南市商河县开发区凯源街北侧,法定代表人为肖妍。经营范围包括冶金机械、氧枪及喷头、铜套制造与销售。
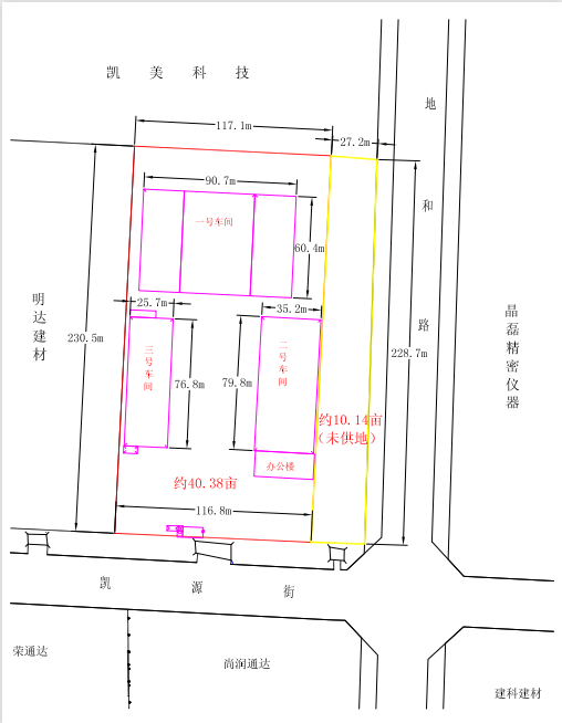
厂区总图
三、合作意向或合作项目概述
企业位于商河医药化工产业园内,现有三栋钢结构厂房及办公楼出租,招引医药化工产业类项目。厂房一面积5500㎡,檐高9.6米,单层,厂房建筑设计防火规范等级为戊类;厂房二面积2700㎡,檐高8米,有5吨行吊;厂房三面积2000㎡,檐高7米,局部二层;办公楼面积2040㎡,共三层。厂区附属设施齐全,水电、天然气、污水等配套设施完善。
厂房航拍图
厂房内部图片
四、行业分析
商河医药化工产业园位于山东商河经济开发区商南工业园内,于2019年1月被山东省政府正式批复认定,起步面积7.77平方公里,重点引进生物医药及高附加值精细化工项目。园区产业发展深度契合山东省十强产业、济南十大千亿级产业—生物医药发展规划,并与济南生命科学城、济南国际医学科学中心、济南生物医药产学研联盟等平台形成联动,现已成为京沪两大都市圈之间重要的区域性生物医药、医疗康养承载地。
五、合作方式
厂房对外出租,欢迎有投资意向的项目方前来考察参观,投资置业。
六、联系方式
联系人:李先生 15954100444
联系人:高先生 13573129779
——投资商河 共赢未来——



